SAVED No Saved House Plans REGISTER LOGIN Empty Cart
BLOG
Our Favorites + Building Knowledge and Materials
Home>Articles

14 New Farmhouse Plans

14 New Farmhouse Plans
Explore these new farmhouse plans that we love!

This collection of farmhouse plans includes some of our newest designs, featuring classic farmhouse details. Ranging from smaller plans to large, luxurious homes, you’re sure to find the farmhouse of your dreams in this selection of homes. Browse welcoming front porches, gable roof designs, and other quintessential details that set this collection apart.

Interested in seeing all of our farmhouse plans? Check them all out here.

Farmhouse with a Convenient Carport Dream House Plan - Exterior - Front Elevation for Farmhouse House Plan #927-1031 - 5 bed, 5 bath Farmhouse with a Convenient Carport 927-1031 - Front Exterior Dream House Plan - 14 New Farmhouse Plans Farmhouse with a Convenient Carport 927-1031 - Main Floor Plan Dream House Plan - 14 New Farmhouse Plans Farmhouse with a Convenient Carport 927-1031 - Upper Floor Plan

Beyond this home’s covered porch, a foyer leads into the two-story family room, which borders the kitchen, dining space, and owners’ suite. This suite features a bathroom with two vanities, as well as dual walk-in closets that any couple would appreciate. Beyond the kitchen, a walk-in pantry, laundry room, and a hall bathroom make this home effortlessly convenient, leading to the carport that connects the home to one of the garages. Upstairs, three more bedrooms and an optional bonus room create more room for guests or relaxing with family.

Classic Modern Farmhouse Dream House Plan - Exterior - Front Elevation for Farmhouse House Plan #430-280 - 4 bed, 3 bath Classic Modern Farmhouse 430-280 - Front Exterior Dream House Plan - 14 New Farmhouse Plans Classic Modern Farmhouse 430-280 - Main Floor Plan Dream House Plan - 14 New Farmhouse Plans Classic Modern Farmhouse 430-280 - Upper Floor Plan

With a clean and simple exterior that leads to an open floor plan, this farmhouse is perfect for a family who loves to entertain. The main level features a kitchen that flows into the dining room and great room, as well as a walk-in pantry, primary suite, and guest bedroom. The rear porch is accessed from the dining room, and a wraparound porch sits in front of the house. Upstairs, a loft, two bedrooms and a full bathroom creates a haven for guests or kids to enjoy.

Chic and Clean Farmhouse Dream House Plan - Exterior - Front Elevation for Farmhouse House Plan #1070-175 - 3 bed, 2.5 bath Chic and Clean Farmhouse 1070-175 - Front Exterior Dream House Plan - 14 New Farmhouse Plans Chic and Clean Farmhouse 1070-175 - Main Floor Plan Dream House Plan - 14 New Farmhouse Plans Chic and Clean Farmhouse 1070-175 - Upper Floor Plan

Beyond the front porch of this modern farmhouse, an entryway leads toward the home’s great room, which flows into the kitchen and dining room with ease. The primary suite with a walk-in closet and full bathroom sits to the left, near a convenient office that’s perfect for those who work from home. On the second floor, two more bedrooms, a bonus room, and a full bathroom are ideal for kids or visitors.

Luxe Farmhouse Dream House Plan - Exterior - Front Elevation for Farmhouse House Plan #923-257 - 3 bed, 3.5 bath Luxe Farmhouse 923-257 - Front Exterior Dream House Plan - 14 New Farmhouse Plans Luxe Farmhouse 923-257 - Main Floor Plan Dream House Plan - 14 New Farmhouse Plans Luxe Farmhouse 923-257 - Upper Floor Plan

Over 3,000 square feet of living space, three bedrooms, and a wraparound porch characterize this home, which welcomes guests in through the great room. The kitchen and dining space sit straight ahead, with the primary suite located all the way at the rear of the home. Upstairs, two more bedrooms with their own bathrooms create space for guests to enjoy, while a balcony loft opens the space and allows both floors to flow together visually.

Farmhouse Cottage Dream House Plan - Exterior - Front Elevation for Barndominium House Plan #923-250 - 3 bed, 2 bath Farmhouse Cottage 923-250 - Front Exterior Dream House Plan - 14 New Farmhouse Plans Farmhouse Cottage 923-250 - Main Floor Plan

This 1,596-square-foot home invites you in from the porch and vaulted entryway. Off the great room, a grilling porch provides space to entertain outdoors. The primary suite features a bathroom with double sinks and simple access to the laundry room. Two more bedrooms sit on the other side of the home, with a shared bathroom in the center.

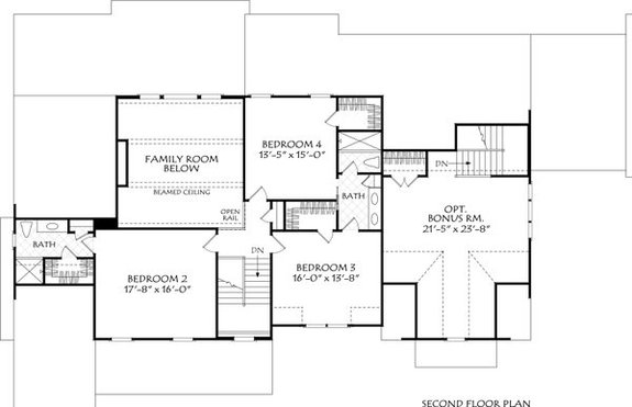
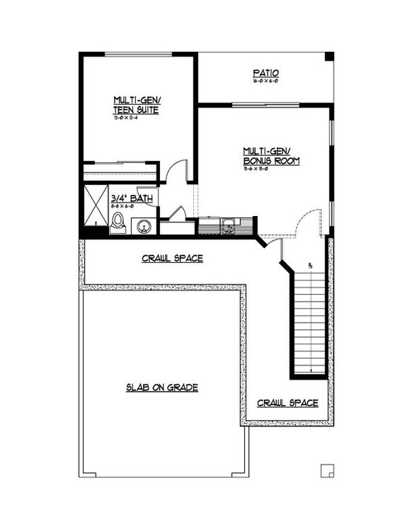
Three-Level Farmhouse Plan Dream House Plan - Exterior - Front Elevation for Farmhouse House Plan #569-95 - 5 bed, 3.5 bath Three-Level Farmhouse Plan 569-95 - Front Exterior Dream House Plan - 14 New Farmhouse Plans Three-Level Farmhouse Plan 569-95 - Main Floor Plan Dream House Plan - 14 New Farmhouse Plans Three-Level Farmhouse Plan 569-95 - Upper Floor Plan Dream House Plan - 14 New Farmhouse Plans Three-Level Farmhouse Plan 569-95 - Basement Floor Plan

This 2,888-square-foot home features five bedrooms and three levels. Beyond the entry porch, a foyer leads towards the great room with a combined kitchen and dining space just steps away. A covered outdoor living area, powder room, mudroom, and pantry complete this level. The second floor features the primary suite and three more guest bedrooms, as well as a leisure loft that creates a relaxing haven in your home. On the basement level, an additional suite is perfect for older kids or relatives to enjoy, featuring its own bathroom and a living area with access to a patio.

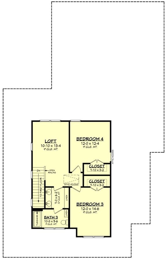
Four-Bedroom Farmhouse Dream House Plan - Exterior - Front Elevation for Farmhouse House Plan #1064-188 - 4 bed, 3.5 bath Four-Bedroom Farmhouse 1064-188 - Front Exterior Dream House Plan - 14 New Farmhouse Plans Four-Bedroom Farmhouse 1064-188 - Main Floor Plan Dream House Plan - 14 New Farmhouse Plans Four-Bedroom Farmhouse 1064-188 - Upper Floor Plan Dream House Plan - 14 New Farmhouse Plans Four-Bedroom Farmhouse 1064-188 - Basement Floor Plan

This farmhouse opens with a front porch with Craftsman-reminiscent columns, leading into 2,753 square feet of open living space. The den sits directly to the right, creating a cozy place to relax just steps away from the kitchen, dining space, and great room. The primary suite is located to the left, including a full bathroom with two vanities and a walk-in closet. On the second level, three more bedrooms and a bonus room create ample space for guests, plus lots of closet storage space and two full bathrooms. Down a couple of flights of stairs, the basement level (if you choose to finish it) is perfectly designed for hosting guests and can hold an extra bedroom, bathroom, living space, and even a bar for gathering and enjoying a favorite cocktail.

Simple Family Farmhouse Dream House Plan - Photo for Farmhouse House Plan #1070-171 - 3 bed, 2.5 bath Simple Family Farmhouse 1070-171 - Front Exterior Dream House Plan - 14 New Farmhouse Plans Simple Family Farmhouse 1070-171 - Main Floor Plan Dream House Plan - 14 New Farmhouse Plans Simple Family Farmhouse 1070-171 - Upper Floor Plan

Beyond the front porch of this farmhouse, the foyer leads toward the home’s great room, which borders the kitchen and dining room. The primary suite with a walk-in closet and full bathroom sits to the left, with an office close by that’s perfect for those who work from home. On the second floor, two more bedrooms and a full bathroom are ideal for kids or visitors, while the basement can be finished to hold another bedroom, a bathroom, an activity room, and a patio.

Cute Cottage Farmhouse Plan Dream House Plan - Exterior - Front Elevation for Cottage House Plan #923-246 - 3 bed, 2 bath Cute Cottage Farmhouse Plan 923-246 - Front Exterior Dream House Plan - 14 New Farmhouse Plans Cute Cottage Farmhouse Plan 923-246 - Main Floor Plan

This simple farmhouse plan features 1,480 square feet of living space, three bedrooms, and a convenient one-story layout. Off the covered porch, a foyer leads into the kitchen, which flows into the dining room and great room with ease. A grilling porch sits just beyond the great room, creating the perfect place to relax with guests outdoors. Back inside, the primary suite sits to the right of the foyer, with the second bedroom located just across the hallway. A third bedroom is located back by the front door, making this space nicely secluded for use as a home office.

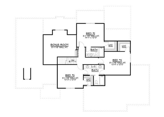
Five-Bedroom Farmhouse Dream House Plan - Exterior - Front Elevation for Farmhouse House Plan #569-57 - 5 bed, 3 bath Five-Bedroom Farmhouse 569-57 - Front Exterior Dream House Plan - 14 New Farmhouse Plans Five-Bedroom Farmhouse 569-57 - Main Floor Plan Dream House Plan - 14 New Farmhouse Plans Five-Bedroom Farmhouse 569-57 - Upper Floor Plan

Offering over 3,200 square feet of living space and five bedrooms, this two-story home is perfect for a large family or a couple who loves having guests visit. Through the front door, the grand foyer leads toward the versatile guest room or den on the left and the great room, kitchen, and dining area straight ahead. Beyond the kitchen’s center island, a walk-in pantry and mudroom leading from the garage help keep your home organized. An outdoor living area invites you to entertain outside. Upstairs, the primary suite features dual walk-in closets and a bathroom with double sinks, while three more bedrooms and another bathroom create plenty of space for kids or visitors. Plus, a bonus loft provides room to unwind just steps from the home’s bedrooms.

Luxe Modern Farmhouse Dream House Plan - Exterior - Front Elevation for Farmhouse House Plan #1074-54 - 4 bed, 3.5 bath Luxe Modern Farmhouse 1074-54 - Front Exterior Dream House Plan - 14 New Farmhouse Plans Luxe Modern Farmhouse 1074-54 - Main Floor Plan Dream House Plan - 14 New Farmhouse Plans Luxe Modern Farmhouse 1074-54 - Upper Floor Plan

This 3,500-square-foot farmhouse plan includes four bedrooms, an open floor plan, and upstairs bonus space that can be finished for more space. Beyond the impressive front porch, the home opens with a foyer that is bordered by a office or flex room. The main living space sits straight ahead, including a great room, dining space, and kitchen, plus a walk-in pantry and powder bathroom.

Simple Elegance Dream House Plan - Exterior - Front Elevation for Craftsman House Plan #20-2494 - 3 bed, 2.5 bath Simple Elegance 20-2494 - Front Exterior Dream House Plan - 14 New Farmhouse Plans Simple Elegance 20-2494 - Main Floor Plan

Here's a modern, streamlined style. With three bedrooms and nearly 2,500 square feet of space to enjoy, this home features a covered porch entrance, opening to a great room straight ahead and an office to the left that’s ideal for working from home. The spacious kitchen sits to the left and includes a walk-in pantry and access to the covered porch, making outdoor entertaining simple. Across the space, the primary suite sits at the rear of the home, including a five piece bathroom with dual vanities. Two more bedrooms with a shared full bathroom round out this level, creating the ideal space for a family or anyone who enjoys hosting guests.

Dreamy Farmhouse Cottage Dream House Plan - Exterior - Front Elevation for Farmhouse House Plan #126-242 - 3 bed, 2 bath Dreamy Farmhouse Cottage 126-242 - Front Exterior Dream House Plan - 14 New Farmhouse Plans Dreamy Farmhouse Cottage 126-242 - Main Floor Plan

Beyond the covered porch, this cottage opens with a great room, with all three bedrooms, including the primary suite, located along the right side. The kitchen, located at the rear of the home, features a snack bar and dining area, making the perfect space to gather with family. A full bathroom and laundry room complete this layout, optimizing the 1,359 square feet of living space.

Farmhouse Plan with a Welcoming Porch Dream House Plan - Exterior - Front Elevation for Craftsman House Plan #461-84 - 4 bed, 3.5 bath Farmhouse Plan with a Welcoming Porch 461-84 - Front Exterior Dream House Plan - 14 New Farmhouse Plans Farmhouse Plan with a Welcoming Porch 461-84 - Main Floor Plan Dream House Plan - 14 New Farmhouse Plans Farmhouse Plan with a Welcoming Porch 461-84 - Upper Floor Plan Dream House Plan - 14 New Farmhouse Plans Farmhouse Plan with a Welcoming Porch 461-84 - Basement Floor Plan

Beyond this home’s front entryway, the living room welcomes you in, leading toward the kitchen and dining room at the rear of the space. A flex room completes this level. Head upstairs to the home’s three bedrooms and two bathrooms. A fourth bedroom, another bathroom, and a playroom sit on the basement level, offering even more room for hosting guests or relaxing. There's also finished attic space on the third floor.

Looking to explore more of our new farmhouse plans? Browse the full collection here.

Today's Deals