SAVED No Saved House Plans REGISTER LOGIN Empty Cart
BLOG
Our Favorites + Building Knowledge and Materials
Home>Articles

Modern Barndominium Plans

Modern Barndominium Plans
Stand out with these modern barndominium plans.

Modern Barndominium Plans

By Courtney Pittman

Versatile and stylish, modern barndominium plans have a lot to offer. Plenty of storage, inviting front porches, and spacious, open floor plans feel classic yet up to date. We’ve gathered some of our most attractive barn-style plans below. (Note that the term barndominium refers here to the rugged look, not necessarily the construction method, although some of the plans below do offer metal framing.)

See more barndominium plans here.

Sleek and Small Barndominium Plan Sleek and Small Barndominium Plan Sleek and Small Barndominium Plan - Front Exterior

Sleek and Small Barndominium Plan Sleek and Small Barndominium Plan - Main Level

Sleek and Small Barndominium Plan Sleek and Small Barndominium Plan - Upper Level

Looking for a compact house plan? We’ve got you covered with this barndominium design. Sleek lines and a gable roof show off chic curb appeal. A modern layout waits inside. In the kitchen, a large island opens to the great room and creates a relaxed vibe.

The second level gives you two bedroom suites (including the primary suite with its two sinks), a vaulted loft, and a laundry room. A generous storage closet in the garage is a thoughtful touch.

Barndominium Plan with Large Workshop Barndominium Plan with Large Workshop Barndominium with Large Workshop - Front Exterior

Barndominium Plan with Large Workshop Barndominium Plan with Large Workshop - Main Level

This modern barndominium plan turns heads with a metal roof and stylish barn doors. Out back, a large porch makes it easy to step out and enjoy the day. The living room and the kitchen flow into one another with ease. Serve up casual meals at the kitchen island.

Nearby, a walk-in pantry keeps groceries tidy and organized. Complete with an office, a versatile workshop opens up all kinds of possibilities.

Barndo Plan with Wraparound Porch Barndo Plan with Wraparound Porch Barndo Plan with Wraparound Porch - Front Exterior

Barndo Plan with Wraparound Porch Barndo Plan with Wraparound Porch - Main Level

Barndo Plan with Wraparound Porch Barndo Plan with Wraparound Porch - Upper Level

Here’s a cool barndominium plan that takes full advantage of scenic views and outdoor living with a generously-sized wraparound porch. Inside, the open layout feels modern and bright. We love the extra-big kitchen island and the organized pantry.

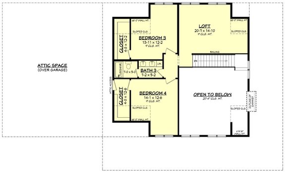
Located on the main level, the convenient primary suite impresses with two closets, a large shower, and direct access to the covered porch. A secondary bedroom rests on this floor, while two more bedrooms and a loft share a full bath upstairs.

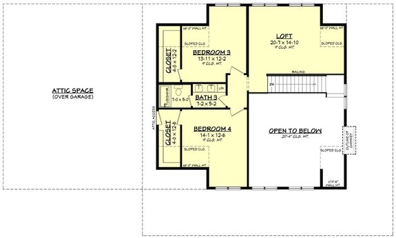
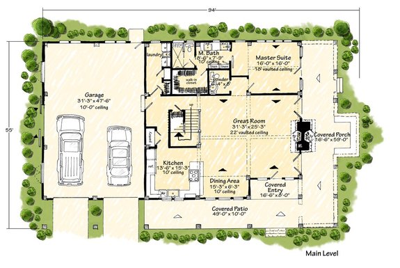
Four-Bedroom Modern Barn-Style Plan Four-Bedroom Modern Barn-Style Plan Four-Bedroom Modern Barn-Style Plan - Front Exterior

Four-Bedroom Modern Barn-Style Plan Four-Bedroom Modern Barn-Style Plan - Main Level

Four-Bedroom Modern Barn-Style Plan Four-Bedroom Modern Barn-Style Plan - Upper Level

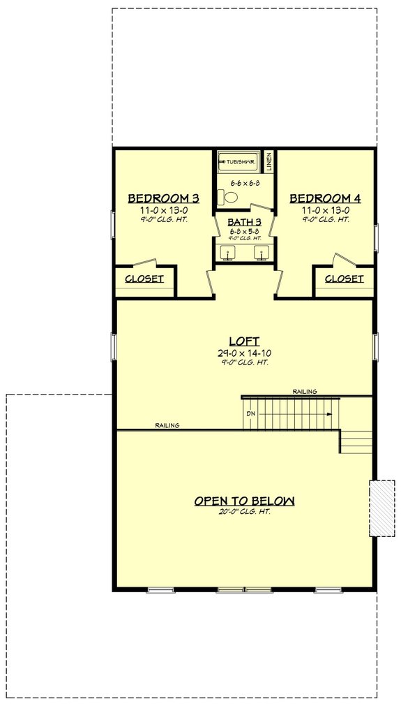
This barn-style plan embraces indoor/outdoor living with a beautiful wraparound porch. A wood-burning fireplace warms the great room, which opens to the large kitchen island. Built-in shelves in the pantry are a welcome detail. Check out the roomy closet in the primary suite.

Across the hall, an additional bedroom includes a walk-in closet. Two more bedrooms, a loft, and a full bath complete the second level.

Contemporary Barndo Plan for Narrow Lot Contemporary Barndo Plan for Narrow Lot Contemporary Barndo Plan for Narrow Lot - Front Exterior

Contemporary Barndo Plan for Narrow Lot Contemporary Barndo Plan for Narrow Lot - Main Level

Contemporary Barndo Plan for Narrow Lot Contemporary Barndo Plan for Narrow Lot - Upper Level

Ideal for a slim lot, this barndominium floor plan clocks in at just 18 feet wide. On the first level, the kitchen provides plenty of counter space and features an eating bar that overlooks the great room. The laundry room and a half bath rest near the back. Upstairs, a flexible loft sits between the primary suite and the secondary bedroom.

Modern Design with Mudroom Modern Design with Mudroom Modern Design with Mudroom - Front Exterior

Modern Design with Mudroom Modern Design with Mudroom - Main Level

Modern Design with Mudroom Modern Design with Mudroom - Upper Level

Modern and bright, this barndominium plan gives you a super-open layout between the main living areas. Entertain guests at the big island in the kitchen. Just off the two-car garage, you'll find the mudroom.

The first-floor primary suite makes it easy to age in place. Don’t miss the two additional bedrooms and the full bath upstairs.

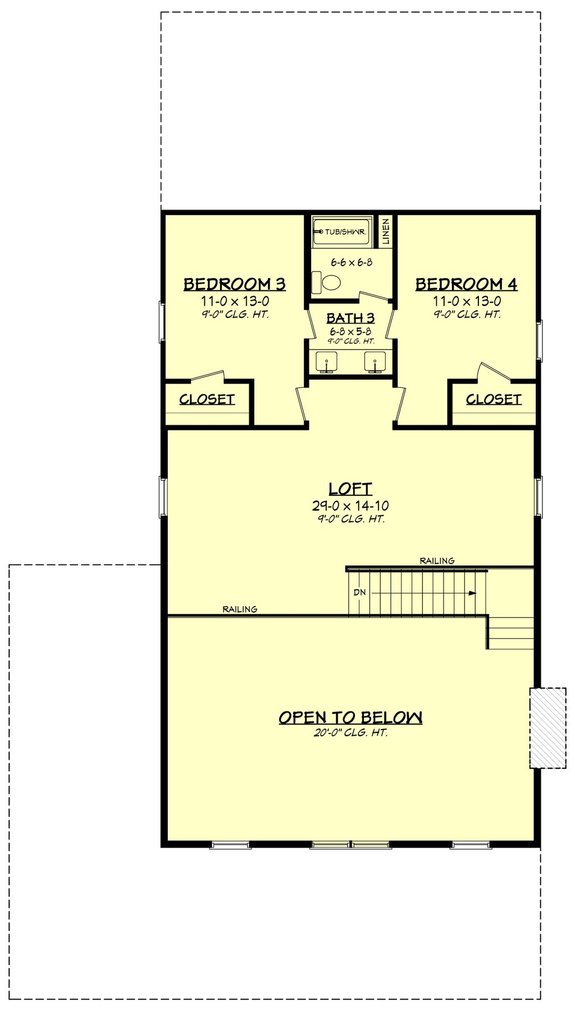
Timeless Barndominium Plan with Loft Timeless Barndominium Plan with Loft Timeless Barndominium Plan with Loft - Front Exterior

Timeless Barndominium Plan with Loft Timeless Barndominium Plan with Loft - Main Level

Timeless Barndominium Plan with Loft Timeless Barndominium Plan with Loft - Upper Level

Here’s a home plan that is ready to impress with modern details. Check out the seamless indoor/outdoor connection between the great room and the wide front porch. The uncomplicated layout places the island kitchen at the heart of the home. Note the extra-large pantry.

Relax in the spa-like bathroom in the primary suite, which offers dual sinks, a huge walk-in closet, and a roomy shower. An extensive loft on the second level adds versatility.

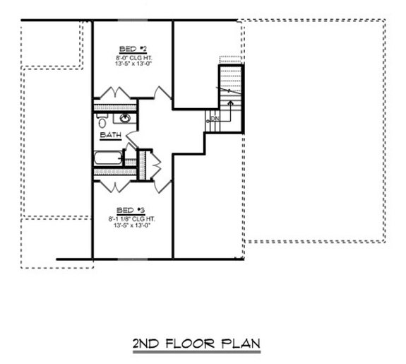
Stylish Home Plan with Double-Sided Fireplace Stylish Home Plan with Double-Sided Fireplace Stylish Home Plan with Double-Sided Fireplace - Front Exterior

Stylish Home Plan with Double-Sided Fireplace Stylish Home Plan with Double-Sided Fireplace - Main Level

Stylish Home Plan with Double-Sided Fireplace Stylish Home Plan with Double-Sided Fireplace - Upper Level

It doesn’t get much more stylish than this modern barndominium floor plan. Take a look at the main-level primary suite, which includes a walk-in closet, a big shower, and private access to the covered porch.

Two more bedrooms and a full bath wait upstairs. Other cool details: the wraparound outdoor living area, the double-sided fireplace between the great room and the porch, and the huge garage.

Browse more barndominium plans.

Modern Barndominium Plans

Today's Deals