By Courtney Pittman
These head-turning house plans embrace the barndominium look with generous porches, metal roofs, and simple footprints. Other standout features include up-to-date amenities like big island kitchens, generous garages/shops, and lots of room for storage. Go big or go home with our newest roundup of large barndominiums below. Note that some of them offer metal framing, while others feature conventional wood framing.
Want more? Browse our barndominium house plans collection here.
Barndo Plan with In-Law Suite
Barndo Plan with In-Law Suite - Front Exterior
Barndo Plan with In-Law Suite - Main Level
Barndo Plan with In-Law Suite - Upper Level
In the market for a design with an in-law suite? Check out this barndo plan. The rustic exterior greets you with a wraparound porch and a metal roof. The fireplace-warmed great room opens to the island kitchen, where a big pantry is ready to hold groceries.
The primary suite (which features a private office) and two secondary bedrooms wait at the back of the plan, while a loft waits upstairs. A great room, a kitchen, and dining area share one big open space in the in-law suite, along with a bedroom, a bath, and a home office.
Super-Open Layout
Super-Open Layout - Front Exterior
Super-Open Layout - Main Level
Super-Open Layout - Upper Level
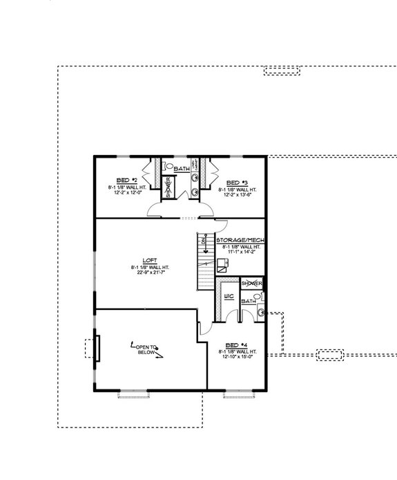
A super-open layout and three porches are just some of the highlights in this two-story barndominium plan. At the heart of the home, the kitchen features a wide island, a roomy pantry, and lots of counter space. Nearby, an office gives you a quiet place to work.
The main-level primary suite shines with dual sinks and a large walk-in shower with a free-standing tub. The second floor provides versatility with four bedrooms, two full baths, and two lofts.
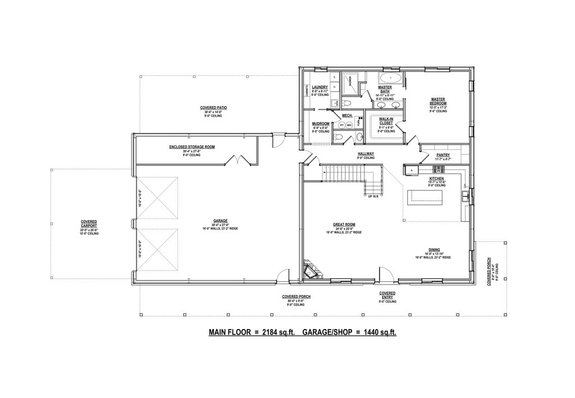
Room for Storage
Room for Storage - Front Exterior
Room for Storage - Upper Level
Here’s a barn-inspired design that hits the sweet spot with thoughtful details and an effortless flow between the main living areas. We love the big wraparound porch out front. The two-car garage features a carport and an enclosed storage room.
The kitchen island overlooks the dining area and the great room, while the primary suite sits quietly at the back of the plan. Two bedrooms, a full bath, two lofts, and a storage closet wait on the second level. Other highlights include: a sizable pantry, an organized mudroom, and a covered patio out back.
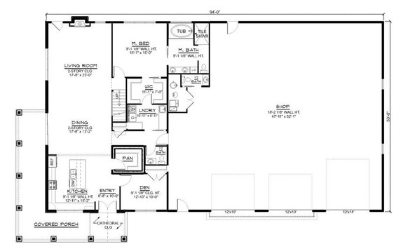
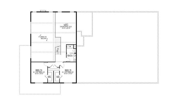
Three-Car Garage with Shop
Three-Car Garage with Shop - Front Exterior
Three-Car Garage with Shop - Main Level
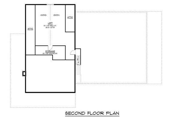
Three-Car Garage with Shop - Upper Level
A three-car garage with a shop (and a half bath) provides plenty of room for storage. An island in the kitchen is a nice touch. Check out the super-spacious pantry. Great for aging in place, the primary suite sits at the back of the main level and offers access to the laundry room.
Upstairs, two additional bedrooms boast walk-in closets. Versatile spaces include a den next to the entry and a loft.
Loving any of the plans you're seeing? Register now to easily save and return to your favorites!
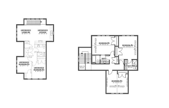
Barndo Plan with Gambrel Roof
Barndo Plan with Gambrel Roof - Front Exterior
Barndo Plan with Gambrel Roof - Main Level
Barndo Plan with Gambrel Roof - Upper Level
Here’s a barndo plan that makes an impression inside and out. A gambrel roof and a wide front porch deliver charming curb appeal. Need room to grow? Check out the unfinished in-law suite on the second level.
The foyer sits between a morning room and a study. Nearby, the kitchen shines with an island, an efficient pantry (note the wall oven), and a coffee bar. Don’t miss the wine room and the buffet in the open dining room. A mudroom is ready to hold items just off the two-car garage.
Barn-Style Design with Game Room
Barn-Style Design with Game Room - Front Exterior
Barn-Style Design with Game Room - Main Level
Barn-Style Design with Game Room - Upper Level
Classic meets modern with this barn-style house plan. The kitchen island overlooks the great room, where a fireplace adds cozy ambiance. Sliding glass doors open to the back porch (which features a grilling area and a sink) for seamless indoor/outdoor living.
Work from home? Check out the study near the front of the plan. Located on the main level, the primary suite shows off an extra-large closet with a central island and a safe room. Two bedrooms and a flexible game room complete the second level.
Double-Sided Fireplace
Double-Sided Fireplace - Front Exterior
Double-Sided Fireplace - Main Level
With clean lines and a lovely roof, this five-bedroom barndominium plan feels timeless and contemporary. A double-sided fireplace sits between the great room and the dining area. The primary suite takes up space on the left side of the plan and makes it easy to wash a load of clothing with direct access to the laundry room.
Four secondary bedrooms share two full baths on the right side of the plan, along with a small second living area. Stay organized with the two-car garage.
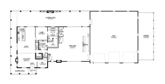
Barn House Plan with Unique Event Area
Barn House Plan with Unique Event Area - Front Exterior
Barn House Plan with Unique Event Area - Main Level
Barn House Plan with Unique Event Area - Upper Level
A covered porch wraps around the perimeter of this barndominium house plan for easy outdoor living. The three-car garage gives you ample room for storage with a big shop and a carport. Looking for versatility? Check out the event area, which features a bar, a fireplace, two half baths, and a wall of sliding glass doors that opens to the porch.
The main living areas are open and airy, with the kitchen island easily serving the living room and the dining area. Don’t miss the loft on the second level.
