SAVED No Saved House Plans REGISTER LOGIN Empty Cart
BLOG
Our Favorites + Building Knowledge and Materials
Home>Articles

6-7 Bedroom Barndominium Floor Plans

6-7 Bedroom Barndominium Floor Plans
Got a big family or just want lots of room? Check these out.

6-7 Bedroom Barndominium Floor Plans

By Courtney Pittman

Good news, barndominium lovers! These barn-inspired designs showcase the perfect blend between rustic and modern style with swoon-worthy exteriors and special details throughout. Most of them feature traditional wood framing, generous open layouts, and spacious garages with shop areas. Check out our favorite 6-7 bedroom barndominium floor plans below.

Want more? Explore our collection of barndominium floor plans here.

Barndo Plan with Two-Bedroom In-Law Apartment Barndo Plan with Two-Bedroom In-Law Apartment Barndo Plan with Two-Bedroom In-Law Apartment - Front Exterior

Barndo Plan with Two-Bedroom In-Law Apartment Barndo Plan with Two-Bedroom In-Law Apartment - Main Level

Barndo Plan with Two-Bedroom In-Law Apartment Barndo Plan with Two-Bedroom In-Law Apartment - Upper Level

Step inside this timeless two-story barndominium floor plan. The open gathering area offers plenty of seating at the angled kitchen island, which features a raised bar. The living room and the dining nook sit nearby.

The main-level primary suite gives you a large walk-in closet. Upstairs, you’ll find an additional primary suite that shows off an extra-big closet and a private deck. Offering lots of privacy above the garage, the spacious in-law suite includes an island kitchen, a living room, two bedrooms, and two full baths.

Barndominium Plan with Loft Barndominium Plan with Loft Barndominium Plan with Loft - Front Exterior

Barndominium Plan with Loft Barndominium Plan with Loft - Main Level

Barndominium Plan with Loft Barndominium Plan with Loft - Upper Level

Between the adorable rustic exterior and the up-to-date amenities, this barndo design is classic and cool. We love the gambrel roof and the metal siding. You also get your choice of framing; metal or conventional.

A super-open layout awaits you inside. The kitchen island serves the great room with ease. Check out the extra-spacious pantry. The primary suite is located on the first floor and impresses with a spa-like bathroom and a generous walk-in closet. Four bedrooms and a large loft round out the second level.

Separate Guest Suite Separate Guest Suite Separate Guest Suite - Front Exterior

Separate Guest Suite Separate Guest Suite - Main Level

Separate Guest Suite Separate Guest Suite - Upper Level

Here’s a barndominium floor plan with lots of versatility. For example, a separate guest suite features a kitchenette, a bedroom with a walk-in closet, and a full bath. Other flex spaces include an office in the primary suite and a spacious loft.

Front and rear porches encourage outdoor living. Oh, and don’t miss the breezeway next to the two-car garage.

Loving any of the plans you're seeing? Register now to easily save and return to your favorites!

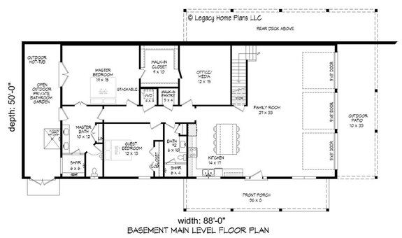
Barndominium Plan with Basement Barndominium Plan with Basement Barndominium Plan with Basement - Front Exterior

Barndominium Plan with Basement Barndominium Plan with Basement - Main Level

Barndominium Plan with Basement Barndominium Plan with Basement - Upper Level

Who can resist a barndominium design with a welcoming front porch? Not us! This standout plan gives you seven bedrooms (including the primary suite) and a modern layout. On the first floor, an extra-big kitchen island seats up to eight and overlooks the family room.

Here’s a cool detail: the primary suite features an outdoor private bathroom garden. Another kitchen and a second family room reside upstairs, along with five bedrooms. Check out the large utility room.

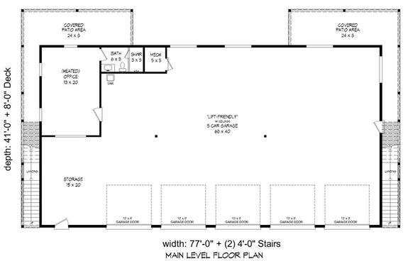
Duplex Design with Five-Car Garage Duplex Design with Five-Car Garage Duplex Design with Five-Car Garage - Front Exterior

Duplex Design with Five-Car Garage Duplex Design with Five-Car Garage - Main Level

Duplex Design with Five-Car Garage Duplex Design with Five-Car Garage - Upper Level

Need room for storage? You’re in luck. This eye-catching duplex design features a five-car garage with extra storage space. An office and a bathroom with a shower sit nearby.

You’ll find two mirror-identical living spaces on the second level. Each unit includes a U-shaped kitchen that opens to a breakfast nook and a living room. Oh, and covered patios to boot.

Discover more barndominium floor plans.

6-7 Bedroom Barndominium Floor Plans

Today's Deals