By Aurora Zeledon
What's a house plan with a casita? It's a floor plan that includes space (typically a bedroom and bathroom, but sometimes a full apartment) that's at least somewhat independent from the rest of the house. If you've got a live-in relative like an in-law or grown child who needs a bit more space, then take a look at the plans below.
Check out more 2-family house plans here.
2,597 Sq. Ft. with a Flexible Casita Above the Garage
2,597 Sq. Ft. with a Flexible Casita Above the Garage - Front Exterior
2,597 Sq. Ft. with a Flexible Casita Above the Garage - Main Floor
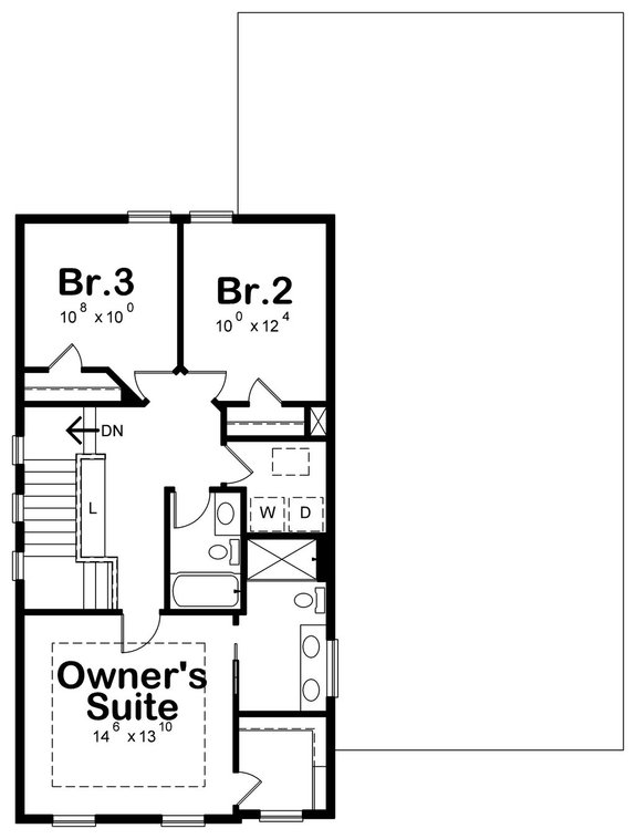
2,597 Sq. Ft. with a Flexible Casita Above the Garage - Upper Level
You don't need a huge house to have a casita. This mid-sized house plan is just 40 feet wide, so you don't need a huge lot either. On the left side of the home, the main layout has good flow without being totally open. A pocket office gives you space for occasional working from home, or even just attending an important virtual meeting.
Three bedrooms upstairs include the spacious primary suite with its large walk-in closet.
Now for the casita: look above the garage, and you'll find a full in-law apartment with an open kitchen, a modern bathroom, and a bedroom.
See more images, information, and the floor plans.
Contemporary Luxury Plan with Casita on the Main Floor
Contemporary Luxury Plan with Casita on the Main Floor - Front Exterior
Contemporary Luxury Plan with Casita on the Main Floor - Main Floor
Contemporary Luxury Plan with Casita on the Main Floor - Upper Level
Maybe you don't want a full in-law suite. In this case, the casita is simply a bedroom and a bathroom instead of a whole apartment. Occupants of this area access the main home by stepping from the bedroom or the bathroom directly onto the shared porch and then inside. This arrangement provides a nice blend of privacy and togetherness.
In the main home, another guest bedroom sits on the main floor near the primary suite. Head up the stair tower and past the gallery to get to two additional bedrooms and a fun game room.
See more images, information, and the floor plans.
4,017 Sq. Ft. Plan with Amazing Primary Suite

4,017 Sq. Ft. Plan with Amazing Primary Suite - Front Exterior
4,017 Sq. Ft. Plan with Amazing Primary Suite - Main Floor
4,017 Sq. Ft. Plan with Amazing Primary Suite - Upper Level
Here's one that's a little different in its layout, with the casita accessed both from the porch (via the pool bathroom) and also from within the main house. That makes this zone flexible for use as a guest suite or even as a home office or hobby space.
Meanwhile, the primary suite also sits on this floor and treats you to an enormous, spa-like bathroom with a walk-through shower, double vanities, and dual walk-in closets.
See more images, information, and the floor plans.
Simple House Plan with a Pocket Office in the Casita

Simple House Plan with a Pocket Office in the Casita - Front Exterior
Simple House Plan with a Pocket Office in the Casita - Main Floor
Simple House Plan with a Pocket Office in the Casita - Upper Level
Do you have a young adult living at home and working or studying remotely? Or any relative who needs some office space? The casita in this plan includes a pocket office in the living space, which is very unique for an in-law suite. A window in this little alcove brings in natural light while working. A walk-in closet in the bedroom is another pleasant surprise.
On the other side of the home, a computer nook between the family room and kitchen adds more space for doing homework or dropping mail. Three more bedrooms and the laundry room sit upstairs.
See more images, information, and the floor plans.