SAVED No Saved House Plans REGISTER LOGIN Empty Cart
BLOG
Our Favorites + Building Knowledge and Materials
Home>Articles

How Big is a 5,000 Square Foot House?

How Big is a 5,000 Square Foot House?
How big is a 5,000 square foot house? Find out here!

How Big is a 5,000 Square Foot House?

By Courtney Pittman

How big is a 5,000 square foot house? With expansive living areas and lots of bedrooms, these designs feel anything but cramped. Look for lavish details like great outdoor spaces, multi-use offices, and more. We’ve gathered some of favorite large home plans (each around 5,000 square feet) below.

Discover luxury house plans.

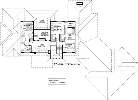
Five Bedroom Suites Five Bedroom Suites Five Bedroom Suites - Front Exterior

Five Bedroom Suites Five Bedroom Suites - Main Level

Five Bedroom Suites Five Bedroom Suites - Upper Level

Looking for a 5,000 square foot house plan with maximum versatility? Check out this modern design. An office sits near the foyer, while a second office and a bedroom suite offer even more flexibility close by.

The two-story great room opens to the dining area and the island kitchen, which includes a pantry and a spice kitchen. Ready to entertain? You’ll love the fun outdoor kitchen. The second floor hosts four more bedroom suites, including the deluxe primary suite.

One-Story Farmhouse Plan One-Story Farmhouse Plan One-Story Farmhouse Plan - Front Exterior

One-Story Farmhouse Plan One-Story Farmhouse Plan - Main Level

This one-story farmhouse plan welcomes you with a covered front porch and metal roof accents. The living room flows effortlessly into the kitchen, which features not one but TWO islands. Nearby, a fireplace warms the keeping room.

The primary suite impresses with a double-sided fireplace, two closets, and a spa-like bath. There’s lots of room for storage in the three-car garage. Don’t miss the outdoor kitchen and the fireplace on the rear porch.

Modern Luxury House Plan Modern Luxury House Plan Modern Luxury House Plan - Front Exterior

Modern Luxury House Plan Modern Luxury House Plan - Main Level

Modern Luxury House Plan Modern Luxury House Plan - Upper Level

Lots of windows, clean lines, and mixed siding deliver contemporary charm to this large house plan. Inside, the foyer sits between the den and the dining room. Close by, a closet is ready to hold coats and shoes, while a mudroom features a built-in bench and room for storage. The open kitchen gives you lots of counter space, a big island, and a walk-in pantry with shelves.

The two-story great room feels breezy and bright. On the back porch, a fireplace keeps things warm and cozy during the chilly months. Store up to three vehicles in the tandem garage. Five bedrooms (including two suites) and a bonus room complete this design.

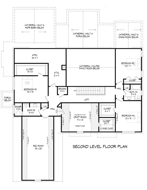
Farmhouse Plan with Four-Car Garage Farmhouse Plan with Four-Car Garage Farmhouse Plan with Four-Car Garage - Front Exterior

Farmhouse Plan with Four-Car Garage Farmhouse Plan with Four-Car Garage - Main Level

Farmhouse Plan with Four-Car Garage Farmhouse Plan with Four-Car Garage - Upper Level

This four-bedroom design, complete with a covered front porch and metal roof accents, shows off farmhouse flair and a hardworking layout. The island kitchen flows without interruption into the generous living room. Nice weather? An outdoor kitchen is ready for outdoor enjoyment on the rear porch.

Ready to impress, the primary suite comes equipped with an extra-large closet and a private porch. The home office is a thoughtful touch. Note the storage and the future room on the second level.

Loving any of the plans you're seeing? Register now to easily save and return to your favorites!

Traditional Plan with Outdoor Kitchen Traditional Plan with Outdoor Kitchen Traditional Plan with Outdoor Kitchen - Front Exterior

Traditional Plan with Outdoor Kitchen Traditional Plan with Outdoor Kitchen - Main Level

Traditional Plan with Outdoor Kitchen Traditional Plan with Outdoor Kitchen - Upper Level

Here’s a traditional house design with a contemporary open floor plan. The family room features a vaulted cathedral ceiling that draws your eye to the fireplace. The open kitchen island is ready to serve up snacks. Check out the coffee center next to the pantry.

Just off the three-car garage, a mudroom shines with built-in lockers and a bench. The primary suite enjoys convenience with a dresser/island in the closet and direct access to the laundry room. The rear covered patio includes a fun outdoor kitchen. Versatile details include an office, a rec room, and a vaulted craft room.

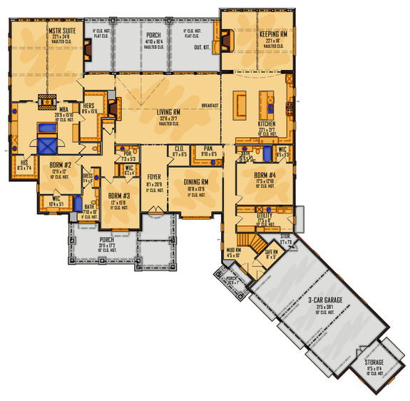
Farmhouse Plan with In-Law Suite Farmhouse Plan with In-Law Suite Farmhouse Plan with In-Law Suite - Front Exterior

Farmhouse Plan with In-Law Suite Farmhouse Plan with In-Law Suite - Main Level

Farmhouse Plan with In-Law Suite Farmhouse Plan with In-Law Suite - Upper Level

Timeless exterior design details like a wraparound porch and a gable roof deliver farmhouse curb appeal, while an up-to-date floor plan waits inside. Next to the foyer, barn doors hide the flexible study. The vaulted living room includes a sitting area and two sets of French doors that open to the rear porch.

The main attraction is the kitchen, which features two islands and a roomy pantry. On the right side of the plan, a bedroom suite boasts a deluxe bathroom, a sitting area, and a private porch. Another bedroom suite (perfect for in-laws, as it's the same size as the primary suite) rests on the left. Don’t miss the game/media room or the handy mudrooms with lockers.

European Plan with Four Bedroom Suites European Plan with Four Bedroom Suites European Plan with Four Bedroom Suites - Front Exterior

European Plan with Four Bedroom Suites European Plan with Four Bedroom Suites - Main Level

Thoughtful details make this European house plan stand out. For example, four bedroom suites (including the luxurious primary suite) give you plenty of room for family and guests. A living/media room could become a home office or a study.

In the kitchen, an angled peninsula overlooks the family room. Nearby, a beverage bar in the breakfast nook is a smart amenity. Check out the workbench in the three-car garage.

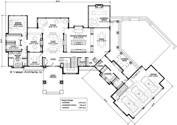
Contemporary Plan with Screened Porch Contemporary Plan with Screened Porch Contemporary Plan with Screened Porch - Front Exterior

Contemporary Plan with Screened Porch Contemporary Plan with Screened Porch - Main Level

Contemporary Plan with Screened Porch Contemporary Plan with Screened Porch - Upper Level

Love the contemporary look? Here’s a chic two-story plan just under 5,000 square feet. Lots of large windows flood the interior with natural light. A study sits next to the foyer.

Located on the main level, the primary suite gives you a sizable closet, a big shower, and a separate tub. A screened porch offers outdoor relaxation while keeping the bugs at bay. On the second floor, a loft can be used in all kinds of ways.

See more luxury house plans.

How Big is a 5,000 Square Foot House?

Coupon Codes