SAVED No Saved House Plans REGISTER LOGIN Empty Cart
BLOG
Our Favorites + Building Knowledge and Materials
Home>Articles

10 Small House Plans with Dreamy Amenities

10 Small House Plans with Dreamy Amenities
Check out these small plans with luxe details we love!

By Gabby Torrenti

These smaller house plans feature lots of luxe amenities that make every room feel special. From expansive outdoor living space to bonus rooms that help maximize every square foot, you’re sure to find your dream home in this collection. Plus, less square footage can mean lower building costs and suitability for smaller lot sizes.

Want to see all of our small house plans with dreamy amenities? Explore the full collection here.

Luxurious Family Farmhouse Dream House Plan - Exterior - Front Elevation for Farmhouse House Plan #1074-1 - 3 bed, 2.5 bath Luxurious Family Farmhouse 1074-1 - Front Exterior Dream House Plan - 10 Small House Plans with Dreamy Amenities Luxurious Family Farmhouse 1074-1 - Main Floor Plan

This 1,814-square-foot farmhouse features a classic exterior, with a trussed front porch that leads into the main living space. A built-in gas fireplace heats up this space, with the kitchen with a center island located just steps away. Some of this home’s most notable features include a five-piece bathroom for the primary bedroom, leading into a large closet, as well as a private kids’ hallway where the other two bedrooms are located. Secluded from the rest of the house, this hall gives younger residents their own space, featuring a shared full bathroom. Outdoor living space completes this plan, giving you and your family space to relax alfresco, too.

Contemporary A-Frame Home Dream House Plan - Exterior - Front Elevation for Contemporary House Plan #117-914 - 2 bed, 2 bath Contemporary A-Frame Home 117-914 - Front Exterior Dream House Plan - 10 Small House Plans with Dreamy Amenities Contemporary A-Frame Home 117-914 - Main Floor Plan Dream House Plan - 10 Small House Plans with Dreamy Amenities Contemporary A-Frame Home 117-914 - Upper Floor Plan

This unique home comes in at just under 1,600 square feet but does not sacrifice dreamy details for the sake of saving space. With instant curb appeal, this home welcomes guests in via a covered porch in front. The open kitchen saves space, while a pantry makes storing all of your favorite ingredients simple. Toward the front of the home, the primary suite includes a walk-in closet and a bathroom across the hallway with double sinks. Upstairs, this home feels open and airy thanks to a loft space that is open to below, making the space feel grand while providing seamless floor-to-floor flow. A second bedroom with its own bathroom completes this space, making the second level ideal for guests to enjoy.

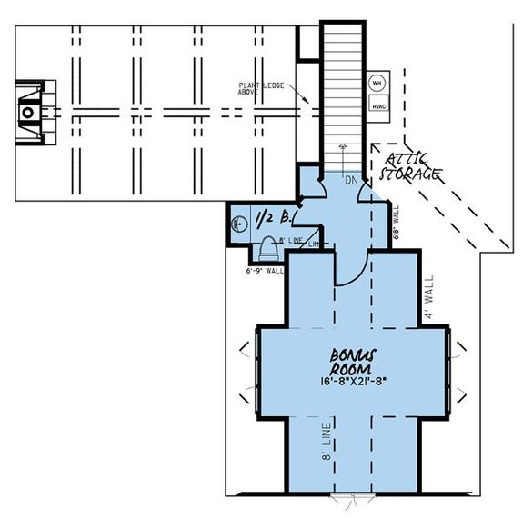
Convenient Country Home Dream House Plan - Exterior - Front Elevation for Country House Plan #923-131 - 4 bed, 2 bath Convenient Country Home 923-131 - Front Exterior Dream House Plan - 10 Small House Plans with Dreamy Amenities Convenient Country Home 923-131 - Main Floor Plan Dream House Plan - 10 Small House Plans with Dreamy Amenities Convenient Country Home 923-131 - Bonus Room Plan

Coming in at 1,897 square feet, this country-inspired home opens with a foyer-fronted great room that is surrounded by four bedrooms. The primary suite sits to the right, including a bathroom with dual vanities and a large closet. Across the home, two more bedrooms with a shared bathroom are perfect for kids or guests, while a third flexible bedroom sits close by. This space can double as an office for those working from home, creating a valuable and versatile amenity. At the rear of the home, a grilling porch will thrill any entertainer. Upstairs, versatile bonus space is a priority, allowing you to customize this home to fit your family’s needs. Plus, attic storage helps to keep your space neat and tidy.

Cozy Craftsman Home with Lots of Amenities Dream House Plan - Exterior - Front Elevation for Craftsman House Plan #120-162 - 3 bed, 2.5 bath Cozy Craftsman Home with Lots of Amenities 120-162 - Front Exterior Dream House Plan - 10 Small House Plans with Dreamy Amenities Cozy Craftsman Home with Lots of Amenities 120-162 - Main Floor Plan Dream House Plan - 10 Small House Plans with Dreamy Amenities Cozy Craftsman Home with Lots of Amenities 120-162 - Upper Floor Plan
Dream House Plan - 10 Small House Plans with Dreamy Amenities Cozy Craftsman Home with Lots of Amenities 120-162 - Basement Floor Plan

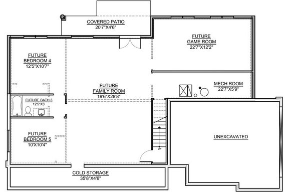
Beyond its Craftsman façade with stone and truss details, this space prioritizes relaxation and entertainment. Three bedrooms, an open living space, and a private primary suite help you feel right at home, but the additional features are what make this space truly special. At the rear of the home, a lanai and barbecue porch are perfect for hosting family and friends during the warmer months, while an upstairs bonus room provides extra space for movie nights. The basement level is where the fun really happens though, as this floor can be finished to feature an additional living room, a game room, a media room, and more outdoor porch space. Plus, a kitchenette makes the perfect place to prepare drinks or snacks between rounds of your favorite game or episodes of your favorite show.

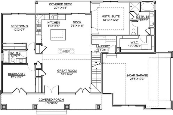
Dreamy Modern Home Dream House Plan - Exterior - Front Elevation for Modern House Plan #895-60 - 3 bed, 2 bath Dreamy Modern Home 895-60 - Front Exterior Dream House Plan - 10 Small House Plans with Dreamy Amenities Dreamy Modern Home 895-60 - Main Floor Plan

With over 1,700 square feet of living space and a sleek exterior, this home welcomes you in via a covered entry porch, leading into the combined living and dining spaces, with a space-saving kitchen off to the left. Toward the back of the home, the primary suite includes its own bathroom with double sinks and a walk-in closet. A nearby laundry room helps keep your space tidy and provides an entryway in from the two-car garage, too. A courtyard patio provides a resort-like feel. The two bedrooms across the courtyard share a full bathroom with double sinks, too.

Luxe Farmhouse Dream House Plan - Exterior - Front Elevation for Farmhouse House Plan #1074-25 - 3 bed, 2 bath Luxe Farmhouse 1074-25 - Front Exterior Dream House Plan - 10 Small House Plans with Dreamy Amenities Luxe Farmhouse 1074-25 - Main Floor Plan

This 1,777-square-foot farmhouse features three bedrooms and a centrally located kitchen. Through the front door, the dining room sits directly to the left, creating a formal space for entertaining guests. Straight ahead, a family room borders the kitchen, which features a walk-in pantry with a barn door. Back past the center island, a mudroom and laundry room border the primary suite, creating a private, secluded space for the owners that is located to the rear of the two-car garage. This suite includes a five-piece bathroom with double vanities and a walk-in closet, nicely secluded from the rest of the home. The two additional bedrooms are back across the main living space, with a shared full bathroom in the middle. At the rear of the home, a porch provides space for outdoor entertaining.

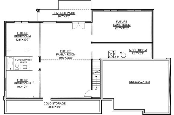
Craftsman Home with Versatile Bonus Space Dream House Plan - Exterior - Front Elevation for Craftsman House Plan #1073-13 - 3 bed, 2 bath Craftsman Home with Versatile Bonus Space 1073-13 - Front Exterior Dream House Plan - 10 Small House Plans with Dreamy Amenities Craftsman Home with Versatile Bonus Space 1073-13 - Main Floor Plan
Dream House Plan - 10 Small House Plans with Dreamy Amenities Craftsman Home with Versatile Bonus Space 1073-13 - Basement Floor Plan
Dream House Plan - 10 Small House Plans with Dreamy Amenities Craftsman Home with Versatile Bonus Space 1073-13 - Bonus Floor Plan

This Craftsman home includes three bedrooms and an open floor plan, plus lots of opportunities for customization throughout. The space opens off the covered porch with a great room that leads into the kitchen with a quaint breakfast nook. The primary suite is located to the right, featuring a bathroom with double sinks and a walk-in closet, while the additional two bedrooms are across the main living space and share a full bathroom. An upstairs bonus space can provide extra storage, but the basement level is where this home’s potential truly shines. The lower level is designed to accommodate a future family room, game room, and two more bedrooms, to give you more room for guests or kids.

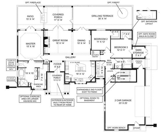
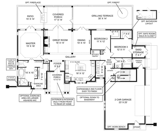
Luxurious European Home Dream House Plan - Exterior - Front Elevation for European House Plan #119-420 - 3 bed, 2 bath Luxurious European Home 119-420 - Front Exterior Dream House Plan - 10 Small House Plans with Dreamy Amenities Luxurious European Home 119-420 - Main Floor Plan
Dream House Plan - 10 Small House Plans with Dreamy Amenities Luxurious European Home 119-420 - Other Floor Plan

Immediately looking larger than it is from the outside, this home comes in just under 2,000 square feet, but is still chock-full of amenities that you would find in a larger home. Beyond the covered porch, the home opens with a foyer that leads to a gallery hallway that connects the two wings of the home. The primary living space sits straight ahead, including a great room, dining room, and access to the grilling terrace and covered porch. Back inside, the main suite features its own full bathroom and closet space, as well as a designated exercise area for the fitness buff in your family. This space also opens to a patio, making it easy to step outside to greet the day. Across the home, the butlers’ pantry is located just off the kitchen, leading toward the home’s mudroom and two additional bedrooms. Want a whole living suite for your guests? Finish the upper level, which can include a living room, bedroom, walk-in closet, full bathroom, and kitchen.

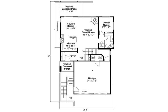
Luxe Modern Home Dream House Plan - Exterior - Front Elevation for Modern House Plan #124-1286 - 2 bed, 2 bath Luxe Modern Home 124-1286 - Front Exterior Dream House Plan - 10 Small House Plans with Dreamy Amenities Luxe Modern Home 124-1286 - Main Floor Plan
Dream House Plan - 10 Small House Plans with Dreamy Amenities Luxe Modern Home 124-1286 - Upper Floor Plan

This modern space features over 1,500 square feet of living space, two bedrooms, and an open floor plan that makes the home flow with ease. The kitchen, dining room, and great room comprise the vaulted main living area, while a patio sits at the rear of the home and an office/guest suite is located to the right. This versatile room allows you to host guests or work from home easily. Upstairs, the owners can enjoy their own private space in a vaulted suite that is completely secluded from the rest of the home. This suite also includes a walk-in closet and full bathroom with two sinks, creating a resort-like feel in your own home.

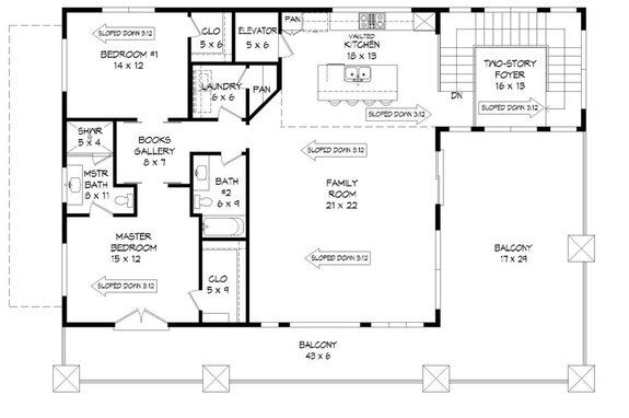
Modern Home with Convenient Features Dream House Plan - Exterior - Front Elevation for Modern House Plan #932-495 - 2 bed, 3 bath Modern Home with Convenient Features 932-495 - Front Exterior Dream House Plan - 10 Small House Plans with Dreamy Amenities Modern Home with Convenient Features 932-495 - Main Floor Plan
Dream House Plan - 10 Small House Plans with Dreamy Amenities Modern Home with Convenient Features 932-495 - Upper Floor Plan

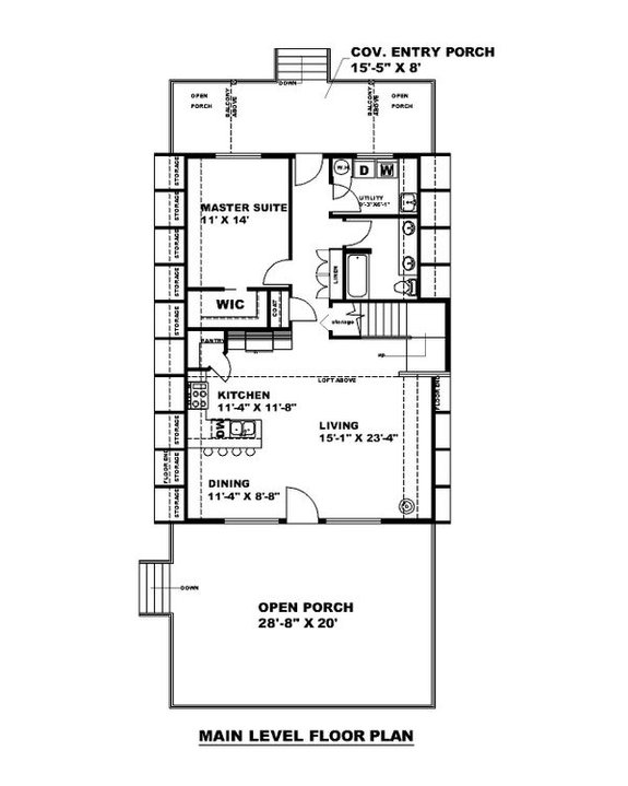
With lots of smart details throughout that make day-to-day living simple, this home is the perfect fit for anyone. On the main level, a two-car garage sits adjacent to an RV bay, creating lots of space for vehicle storage. The covered porch sits to the right, while a workshop toward the rear of the garage space comes equipped with its own bathroom. Step into the elevator for a quick lift to the upper level, where you'll find the home's primary living spaces.

The kitchen and family room comprise the bulk of the home's living space, with two bedrooms with their own bathrooms sitting off to the left. A laundry room and walk-in pantry help keep your space tidy, while outdoor balcony space lets you overlook your property from any angle.

Want to see more of our small dream homes? Check them all out here.

Today's Deals