By Courtney Pittman
Want to build a home that everyone will remember? Unique and eye-catching, barn style house plans lend updated architectural features while providing classic, homey elements that many homeowners are craving today. Our collection of barn style house plans provide generous interior spaces, while staying true to the functional, rural aesthetic.
Browse our collection of barn style house plans
Barn House Plan with Silo
Plan 120-268
Classic meets modern house design in this barn style house plan. With an open floor plan between the main living spaces, the smart layout was designed for everyday comfort and casual living. Like to relax after a long day of work? A rear lanai boasts plenty of room to stretch out for post-work hangs. The large family room features a cozy fireplace and easy connections to the rear porch via sliding glass doors.
The main-level master suite gives you a spacious walk-in closet, dual sinks, a soaking tub, a walk-in shower, and access to the outdoor living space. Upstairs, two bedrooms share a Jack-and-Jill bath, while a bonus space can be used in a variety of ways (like a home office or game room).
Check out these pretty porches from Builder Online
Barn House Plan with Craftsman Details
Plan 1010-127
This handsome barn style house plan features Craftsman accents and would be great on a scenic lot. With both a rear porch and balcony, there are ample opportunities to enjoy outdoor living and cool breezes.
The first level offers an open floor plan with a private study/guest room. The large island kitchen provides plenty of counter space. Upstairs, three bedrooms (including the master suite), a loft area, laundry room, and extra bath reside.
Explore these laundry room ideas from Elle Decor
Spacious Barn Style House Plan
Plan 928-241
Spacious and open, this house design has it all. Boasting a barn-like exterior and a welcoming front porch, this home plan provides plenty of curb appeal. Inside, the generous kitchen island invites casual meals, while opening to the dining room (which features a cute window seat) for more formal occasions. Cold weather got you down? Warm up next to the cozy fireplace in the open living room. A home office could also be used as a guest room or play room.
The main-level master grants you plenty of privacy and helps with aging in place. Another bedroom is located on the first floor, while two more bedrooms and a bath reside on the second level.
Barn-Inspired Modern Farmhouse Plan
Plan 923-114
This unique barn-inspired farmhouse plan features an open floor plan that is uncomplicated and modern. The easygoing floor plan between the main living spaces creates organic flow, while a generously-sized front porch is perfect for outdoor enjoyment. Storage is made easy with the large mudroom/laundry area (just off the two-car garage).
The sizable master suite is located on the left side of the floor plan and features two walk-in closets. An upstairs loft could be used as a home office, game room, or study.
Farmhouse Style Design with Modern Floor Plan
Plan 888-13
The design of this farmhouse style floor plan is reminiscent of a dairy barn and employs traditional elements interpreted in a modern way. Details such as the board-and-batten siding and a recessed, sheltered entry, add charm and utility.
A generous veranda/lanai wraps around the great room to allow for easy indoor-outdoor living.
Barn House Plan with Wrap Around Porch
Plan 1071-10
This barn house plan that greets you with a covered wrap around porch. The relaxed, warm feeling continues with mixed siding, large windows, and gambrel roof. An easygoing layout between the great room, kitchen, and dining room make everyday living seamless. Want to enjoy the great outdoors? Rear glass doors (just off the great room) open to a generous deck.
A cozy fireplace is centered on the great room wall, and completes the ambiance of this farmhouse style home design. The kitchen provides an island and convenient access to the outdoor porch (with a large fireplace).
The private master suite is located on the main level, while two additional bedrooms, a home office (which could be used as a guest room), and a bonus room above the two-car garage live on the second level.
Eye-Catching House Plan with Country Charm
Plan 923-97
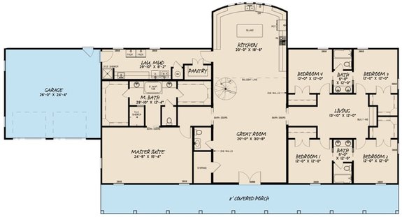
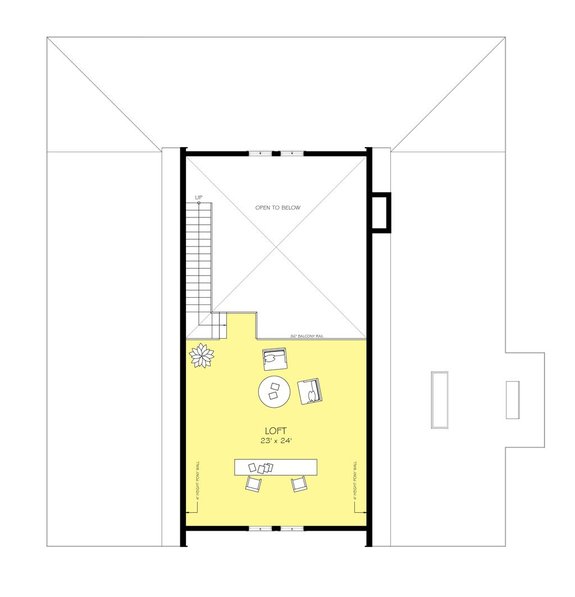
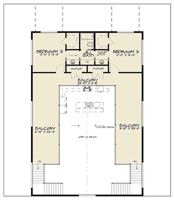
This swoon-worthy home plan has tons of country charm with its barn-like appearance. The high ceilings of the open floor plan create an expansive living space and a great gathering place for the family. Two outstanding features are the large mud/laundry room (with commode and shower) and the spacious pantry (with a wet bar and storage closet). The pantry has access to the wrap around porch making it the perfect place to prepare refreshments when the weather is nice.
Upstairs, two bedrooms share a Jack-n-Jill bath, while a wrap around balcony looks over onto the great room and kitchen below.
Cool House Plan with Sunroom
Plan 70-1419
Reminiscent of the barns of yesterday, this barn house design features a second-story bonus area that could be used as a third bedroom suite. The great room is found just off the entry where a central fireplace draws you into the home. Directly ahead is the dining and kitchen space complemented by an adjacent sunroom.
A spacious deck (just off the sunroom) is the perfect place to relax after a long day. The handy mudroom keeps things organized with smart lockers. Tucked away to the right rear of the floor plan, the master suite enjoys privacy.
Traditional Barn House Plan
Plan 1068-2
Here’s a barn style house plan that strikes a nice balance between traditional and modern life. Porches on three sides of the house give you plenty of room for relaxing outside with a magazine and a glass of lemonade.
The great room opens to the back porch via two sets of French doors, making it easy to enjoy the day. The island kitchen opens to the dining room, so you can easily get dinner on the table without taking too many steps.
Relax upstairs in the master suite, where you’ll find an ultra-spacious bedroom, a big shower, a separate tub, two sinks, and a big walk-in closet.

















